OBJEKT:
Neubau eines Wohn- und Geschäftshauses mit Tiefgarage

STANDORT:
Frasdorf – Ortszentrum

ZEITPLAN:
Bauplanung 2021 - 2022
Bauzeit 2022 - 2023

FAKTEN:
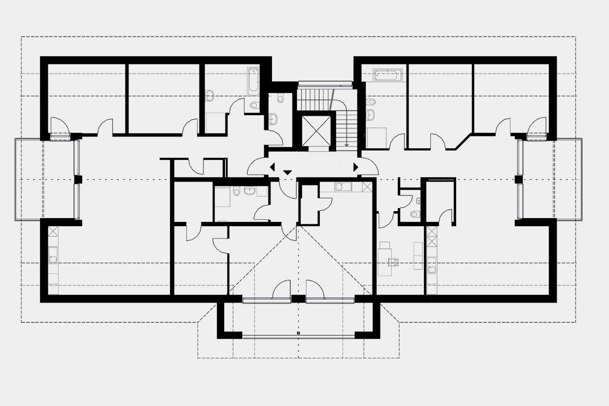
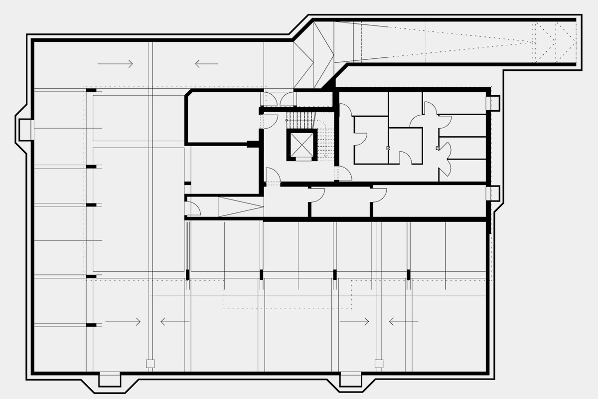
Nach Abbruch des Bestandsgebäudes entsteht in direkter Nähe zum Rathaus ein neues Wohn- und Geschäftshaus, das Raum für mehrere Gewerbeeinheiten (Arztpraxen) und 2- bis 4-Zimmer Wohnungen schafft. Ein Großteil der Stellplätze wird in der angebundenen Tiefgarage untergebracht.
Die Bauweise wird in Stahlbeton mit Wärmedämmverbundsystem realisiert. Die Energieversorgung mit Nahwärme eines lokalen Anbieters, unterstützt durch Solaranlagen.
Städtebauliche Eingliederung in das Gesamtbild der Gemeinde.  

LEISTUNGEN:

  • Grundlagenermittlung
  • Vorplanung
  • Entwurfsplanung
  • Genehmigungs- und Ausführungsplanung
  • Koordination der Zusammenarbeit involvierter Fachplaner
  • Ausschreibungs- und Vergabeprozedere
  • Vergabe von Bauleistungen - Verträge abschließen
  • Bauausführung und ganzheitliches Baumanagement
  • Kostenkontrolle sowie Terminkontrolle
  • Bauleitung zuzüglich der Aufgaben rund um die Bau- bzw. Objektüberwachung
  • Nach Fertigstellung: Baunutzungsphase und umfassende Objektbetreuung
  • Dokumentation
  • Modellbau und Architekturdarstellung (3D)
  • Optimierung der Energieeffizienz im Gebäude
INN2BAU GmbH
Mehr Projekte anschauen

Inn2Bau GmbH
Isarstraße 1c
83026 Rosenheim